4 bedroom property to let
Paignton Close, Rayleigh
£2,600 pcm

40
4
3
2Property Features
Property Details
A recently redecorated four/five-bedroom detached home set on a desirable corner plot within a quiet residential area, conveniently located close to Rayleigh Town Centre, the mainline station and highly regarded schools.
This spacious property offers versatile accommodation throughout, including a generous living room, a flexible dining room which can also serve as a fifth bedroom, and four well-proportioned bedrooms. The master suite provides excellent space with further potential for adaptation to suit modern living.
Externally, the home benefits from a well-maintained landscaped garden, a detached double garage and ample off-street parking. The property also offers scope to extend or reconfigure into open-plan living, subject to the relevant permissions, making it an ideal home for families seeking both space and flexibility in a well-connected location.
Offered with no onward chain, this elegant four/five-bedroom detached residence occupies an enviable corner plot, discreetly positioned within a peaceful residential setting while remaining exceptionally convenient for Rayleigh Town Centre, the mainline station, and its highly regarded schools. Recently redecorated throughout, the home presents beautifully and offers impressive potential, with generous scope to extend the kitchen or re-configure the layout to create a striking open-plan kitchen, living, and dining space perfectly suited to modern lifestyles. Ideal for the contemporary commuter family, the property combines generous proportions, tranquillity, and effortless access to a wealth of local amenities and transport links, all within a short walk.
The welcoming entrance hallway immediately establishes a refined first impression, showcasing elegant solid wood flooring and a striking contemporary staircase with glass balustrading rising to the first floor. The ground floor is further enhanced by a stylish cloakroom and a separate utility room, seamlessly blending practicality with sophistication.
The kitchen is thoughtfully arranged and fitted to three walls, providing a sleek and highly functional space, with double doors opening directly onto the garden and offering convenient access to the garage. The principal living room is generously proportioned and inviting, ideal for both relaxing and entertaining. A separate dining room-currently utilised as a fifth bedroom-adds excellent versatility and can be adapted to suit a variety of lifestyle requirements.
To the first floor, four well-appointed bedrooms are served by a beautifully presented family bathroom. The accommodation has been intelligently adapted by the current owners, with the fourth bedroom currently arranged as an impressive walk-in wardrobe; however, the original doorway remains in place, allowing for straightforward reinstatement as a bedroom if desired.
Externally, the property is further complemented by a landscaped garden with direct access to the detached double garage, measuring approximately 16' x 16' and fitted with a remote-controlled up-and-over door. Additional off-street parking is available to the front, completing the appeal of this stylish, adaptable, and superbly located family home.
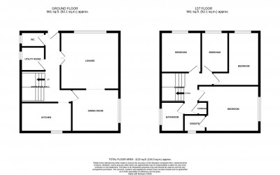
Lounge - 4.57m 0.91m x 3.96m 3.05m ( 15' 3" x 13' 10") -
Dining Room / Bedroom - 3.35m 2.74m x 3.05m 1.83m (11' 9" x 10' 6") -
Kitchen - 3.66m 0.00m x 2.13m 2.13m (12' 0" x 7' 7") -
Utility - 1.52m 2.74m x 1.52m 2.44m (0.30m.22.86mm x 0.30m.2 -
Bedroom /Ensuite - 3.96m 1.83m x 3.35m 1.22m (13' 6" x 11' 4" ) -
Bedroom - 2.74m 2.44m x 2.74m 2.44m (9' 8" x 9' 8" ) -
Bedroom - 3.66m 2.13m x 2.13m 0.91m (12' 7" x 7' 3") -
Bedroom - 2.74m 2.44m x 1.83m 1.83m ( 9' 8" x 6' 6") -